Besondere Maisonettewohnung mit Domblick am Fischmarkt
Besondere Maisonettewohnung mit Domblick am Fischmarkt
Eckdaten
- Art Etagenwohnung
- Lage 67346 Speyer
- Kaufpreis 460.000,00 €
- Hausgeld 50,00 €
- Wohnfläche ca. 127 m²
- Zimmer 4
- Baujahr 1920
- Etage 2
- Alt-/Neubau Altbau
- Denkmalschutzobjekt nein
- Heizungsart Gas-Heizung
- Einbauküche nein
- Gäste-WC ja
- Anzahl Balkone 1
- Vermietet nein
- Bezugstermin 01.01.2026
- Fahrzeit Hauptbahnhof 5 min
- Fahrzeit nächste Autobahnauffahrt 10 min
- Fahrzeit nächster Flughafen 60 min
- Bodenbelag Dielen
- Ausstattung des Bades Dusche Fenster Badewanne
- Zustand Gepflegt
- Immobilien-ID 5547
- Provision 3,57% inkl. MwSt.
Immobilie
Eine besonderes Objekt mit besonderen Eigenschaften sucht neue Eigentümer mit Liebe zum individuellen Flair.
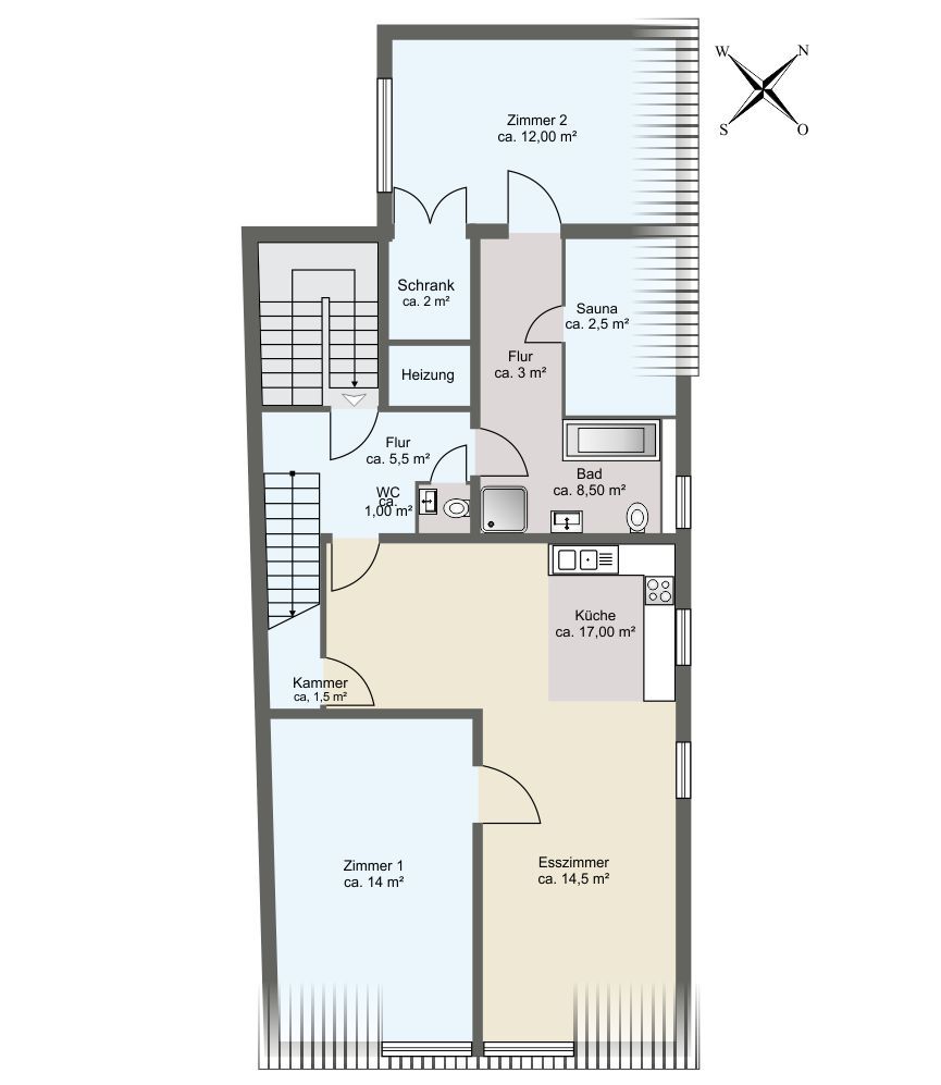
Durch den Hof, durch die Haustür gelangen Sie auf dem Weg zur eigentlichen Wohnung über die Terrasse (50% der Gesamtfläche sind der angebotenen Wohnung zugeordnet). Im 2. OG befindet sich der Zugang zur ersten Wohnebene mit 2 Schlafzimmern, Badezimmer mit Sauna, dem Gäste- WC sowie der offenen Küche mit Essbereich. Schon auf dieser Ebene ist der Blick über die Altstadt bis zum Dom atemberaubend.
Noch beeindruckender auf der nächsthöheren Ebene: Das Wohnzimmer mit sehr schöner gemütlicher Ausstrahlung dank der erhaltenen Holzbalken. Von hier aus führt eine Treppe auf den Spitzboden, der auch schon als Gästezimmer oder Atelier genutzt wurde.
Ein kleiner Kellerraum ist ebenfalls zugeordnet, parken ist mittels Anwohnerparkausweis (30,70 € pro Jahr) möglich.
Lage
Inmitten der Altstadt Speyers – am Fischmarkt gelegen.
Ausstattung
Die Eigentümergemeinschaft verwaltet sich selbst, es ist kein Verwalter bestellt, Rücklagen belaufen sich auf 20.000 € aktuell. Die monatliche Abschlagszahlung für die gemeinschaftlichen Versicherungen beträgt 50,- €. Sämtliche anderen Nebenkosten werden von den jeweiligen Eigentümern selbst getragen (eigene Gas-Etagenheizung).
1994 wurde das gesamte Objekt generalsaniert und neu aufgeteilt nach WEG.
Bodenbeläge sind Fliesen und 'pfälzisches' Parkett verlegt.
Sonstiges
Bitte haben Sie Verständnis, dass nur Anfragen mit vollständigen Angaben inklusive Telefonnummer bearbeitet werden.
Wir können keinerlei Gewährleistung für die Richtigkeit der Angaben für diese von uns hier angebotene Immobilie übernehmen. Sämtliche Objektdaten/ Objektangaben stammen vom Verkäufer. Technische Funktionsprüfungen werden durch uns nicht durchgeführt. Wir empfehlen dem Käufer die hier gemachten Daten/ Angaben genau zu prüfen. Zwischenverkauf/ Zwischenvermietung vorbehalten. Irrtümer vorbehalten. Der Käufer hat ausreichend Zeit die Immobilie intensiv und eingehend zu besichtigen.
Der Makler-Vertrag mit uns und/oder unserem Beauftragten kommt durch die Bestätigung der Inanspruchnahme unserer Maklertätigkeit in Textform zustande, wie z.B. insbesondere die Unterschrift des Suchkundenvertrages und/oder des Objekt-Exposés. Die Höhe der Courtage richtet sich nach den ab dem 23.12.2020 in Kraft getretenen gesetzlichen Regelungen zur Teilung der Maklercourtage. Hiernach wird die Courtage regelmäßig für beide Parteien (Eigentümer und Käufer) in gleicher Höhe – hier von 3,57% inklusive Umsatzsteuer bei notariellem Vertragsabschluss verdient und fällig. Die Höhe der Bruttocourtage unterliegt einer Anpassung bei Steuersatzänderung. Grunderwerbssteuer, Notar- und Gerichtskosten trägt der Käufer.
Energieausweisangaben
- Enerigeausweistyp Bedarfsausweis
- Energiekennwert 190 KWh(m²*a)
- Energieeffizienzklasse F
- Energie mit Warmwasser nein
- Energieausweis erstellt am 12.06.2020
- Energieausweis gültig bis 11.06.2030
- Heizungsart Gas-Heizung
Grundrisse
Herzlichen Dank für Ihre Anfrage.
Wir werden diese so schnell wie möglich bearbeiten.











